070 Neubau Kindergarten Städtli Huttwil

CLEMATIS – Die Schulanlage Städtli liegt südöstlich vom Zentrum Huttwils. Das Primarschulhaus von 1897 mit dem mit Bäumen gesäumten Pausenplatz und die „Alte Turnhalle“ sowie das in unmittelbarer Nähe stehende Pfarrhaus sind Objekte des Kantonalen Bauinventars.

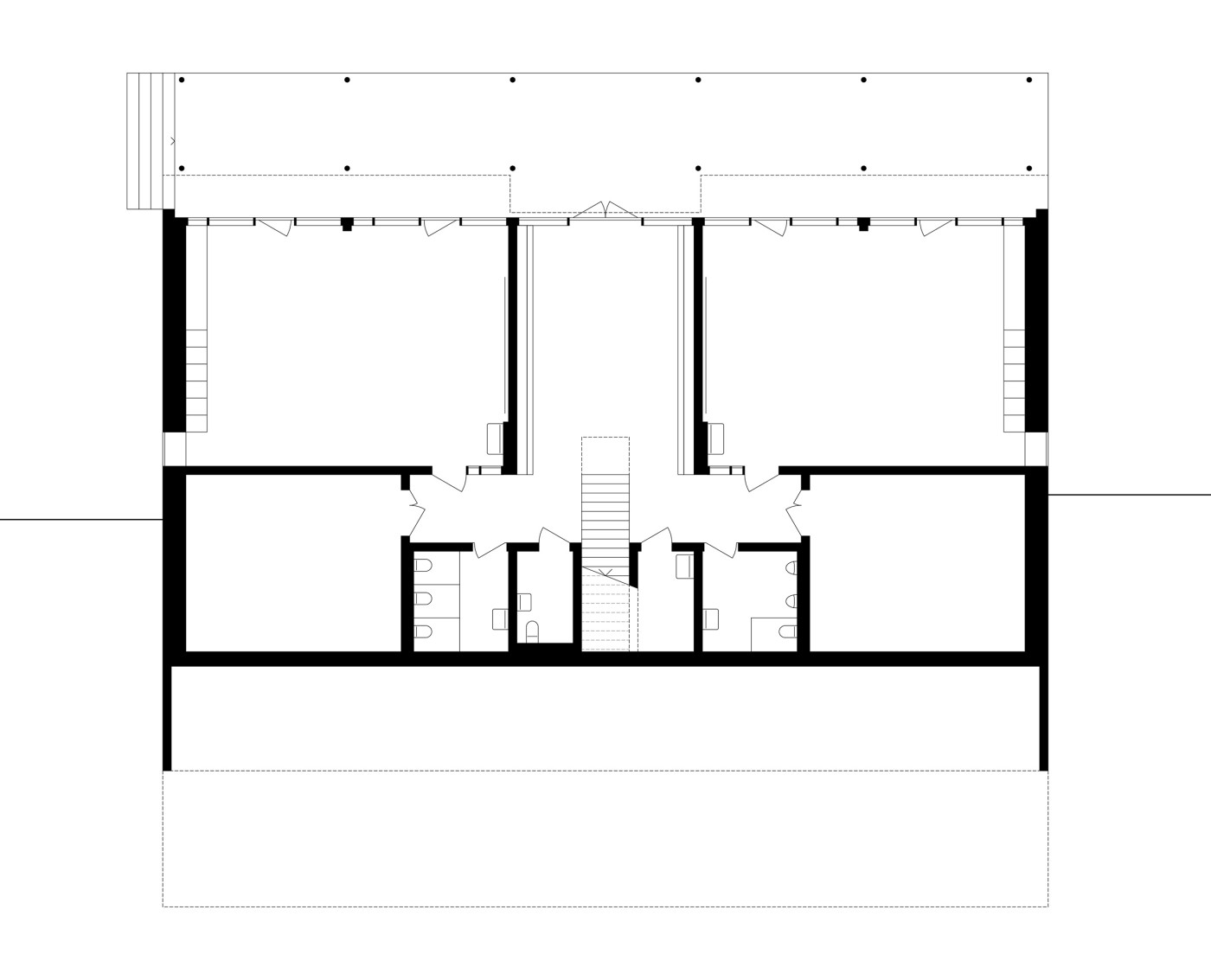
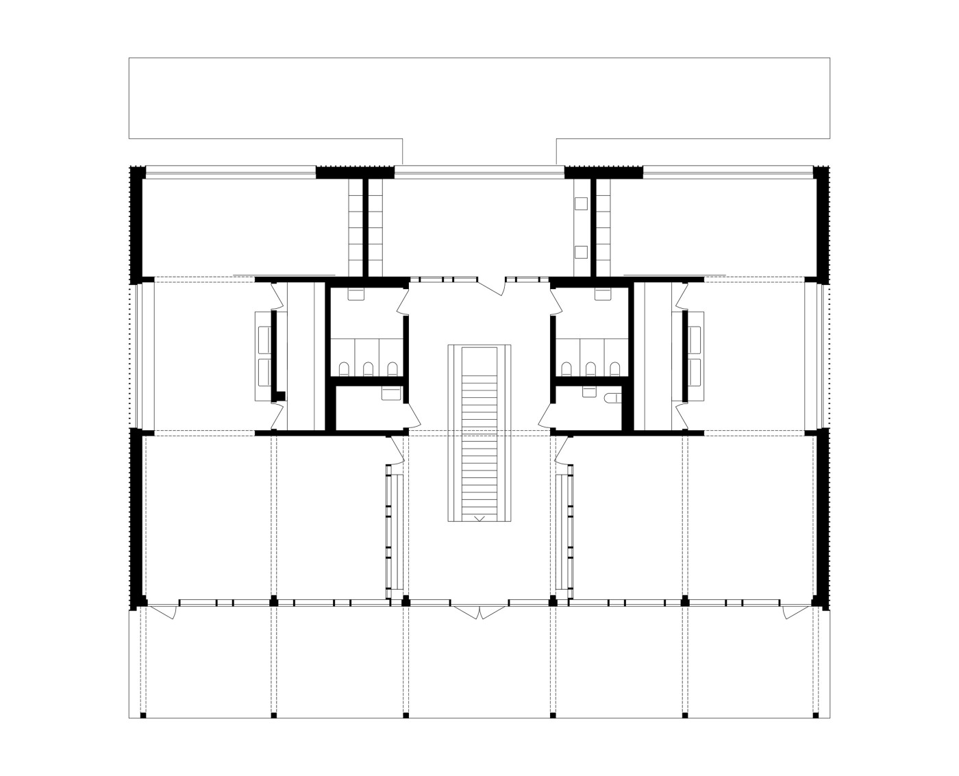
Der Neubau integriert sich in die bestehende Konstellation der Bauten und Aussenräume. Auf der Hangkante sitzend, beherbergt dieser das auf zwei Ebenen organisierte Programm: Zwei nach Norden orientierte Klassenzimmer der Unterstufe auf dem Niveau des Schulgartens, ein Geschoss höher zwei nach Süden ausgerichtete Kindergärten auf Niveau Dornackerweg.

Der eingefriedete Garten dient weiterhin als Schulgarten. Mit einer Arena und Hängematten ausgestattet, wird er zum ruhigen Ort des Lernens und des Rückzugs. Die Spielflächen des Kindergartens erfahren eine feine räumliche Trennung vom restlichen Schulbetrieb. Die gedeckte Pausenhalle und eine offene Spielwiese mit Spiellandschaft werden durch niedrige Mauern räumlich gefasst. Im umgebenden Grün sind Sandkasten und Spielgeräte integriert.

Das Haus wird über die gedeckten Aussenbereiche erschlossen. Die Klassenzimmer, mit geschosshoher Verglasung, sind auf den Garten ausgerichtet. Die Kindergärten, ebenfalls mit geschosshoher Verglasung, werden durch Einbauten in Haupt- und Gruppenräume gegliedert. Die beiden Ebenen sind über die interne Treppe miteinander verbunden. Die mittig liegenden Garderoben und der Aufenthaltsraum der Lehrpersonen schliessen unmittelbar an.

Das Gebäude ist als Hybridbau konstruiert. Auf dem massiven Sockel in Sichtbeton sitzen die hölzernen Kindergärten mit weit ausladendem Dach. Ein an der Stirnfassade hochgezogenes Spalier aus Chromstahlseilen dient der Waldrebe als Rankhilfe. Der bewachsene Neubau wird sich mit der Zeit mehr und mehr in das umgebende Grün des Gartens integrieren und im Verlauf der Jahreszeiten sein Kleid wechseln.

Projektwettbewerb 1. Preis, 2017
Realisierung 2019-2020
Bauherrschaft Einwohnergemeinde Huttwil

In Zusammenarbeit mit kunzarchitekten, Sursee
Team: Michelle Lieberherr, Michael Schlömer
Projektleitung: Andreas Amrein, Hans Kunz

Umgebung ORT für Landschaftsarchitektur, Zürich; Statik Konstruktiv Ingenieure und Planer, Gränichen; Elektroplanung Elektroplan, Horw; Haustechnik Kunz Planung & Beratung HL, Adligenswil; Sanitärplanung Peter Sanitärplanung, Luzern
Fotos Lukas Murer, Zürich